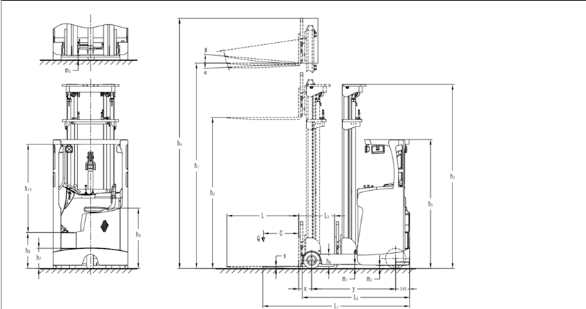
CQD16H&CQD20H

Seat Type Electric Reach Truck
CQD16H CQD20H
1. Optional Capacity: 1.6tons, 2tons
2.  Optional Lift Height: 3000-8000mm.